售价:
118 万
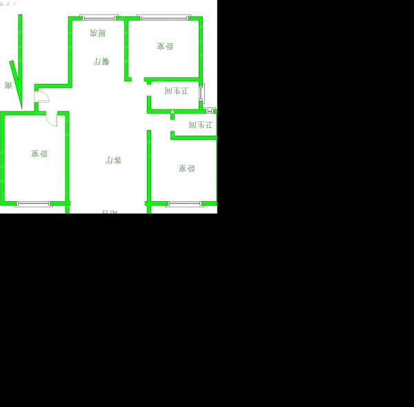
户型:
3室2厅2卫
建筑面积:
143.00 ㎡
紧邻文昌,楼层佳,前后不冲,证件齐全可贷款!
房屋户型好,地段好,位置佳,交通便利,周边环境优美,配套设施完善,周边有菜市场超市生活方便,非常不错的房源
房主诚信出售!产权清晰!如果您有其他购房需求也可告知我,为您查找其他合适房源!
本人从事房地产多年,好房多多,欢迎进入我的店铺查看,欢迎随时电话咨询,用我的服务为您置业安家保驾护航。
